Skip to Main Content
Living in Solterra
General Regulations
Facilities
Social Groups
Trash & Recycling
Snow Removal
Sewer
Home Improvements
Landscaping
Fee Payment
Resources
I'm New to Solterra
FAQ
Emergency Guide
Wildfire Risk
Maps
Homeowner Suggestions
Governance
Fossil Ridge Metro District
Solterra HOA
Patio HOA
Cadence HOA
News
Events
Contact
Website Search
Search
Submit
Search
Submit
In This Section
Overview
I'm New to Solterra
FAQ
Emergency Guide
Wildfire Risk
Maps
Homeowner Suggestions
I'm New to Solterra
FAQ
Emergency Guide
Wildfire Risk
Maps
Homeowner Suggestions
Resources
Maps
District Map
Highlighted to show the specific areas covered by the three FRMD districts
Fossil Ridge Districts Aerial View Map
Highlighted to show the specific areas covered by the three FRMD districts with surrounding neighborhoods parks, highway C470 and other nearby features labeled
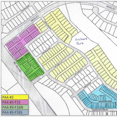
Private Access Areas 2 & 3 Map
Street map with colors showing the streets within each of the Private Access Areas
Tributary Map
Shows the tributary that runs north to south through Solterra with the surrounding streets
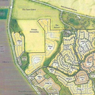
Filings Map
Highlighted and labeled to show the streets included in each of the 21 filings within Solterra